
Mit CONCRETE ELEGANCE von Isabell Ruschmeier, Carina Hartmann und Lisa-Kathrin Frede von der TU Dortmund wurde beim Concrete Design Competition 2016/17 auch ein interdisziplinär erarbeitetes Projekt mit einem Preis ausgezeichnet. Begleitet von den Professoren Ansgar und Benedikt Schulz im Fach Baukonstruktion und Prof. Dr. Jeanette Orlowsky vom Lehrstuhl Werkstoffe des Bauwesens entwickelten die Verfasserinnen eine filigrane Konstruktion aus Textilbeton als seriell produzierbaren, vielerorts einsetzbaren Witterungsschutz im Sinne einer Mikroarchitektur.

Alle Bauteile des systemisch gedachten Entwurfs gehen fließend ineinander über und lassen mit einer Dicke von nur 3cm die Kategorien Masse und Oberfläche ineinander übergehen: Das ganze Objekt ist als gefaltete Fläche gedacht, sein Raum wird von der Fläche bestimmt, Körper und Oberfläche sind Eins. So stellt der konstruktiv und gestalterisch vorbildlich durchgearbeitete Entwurf einen herausragenden Beitrag zum Wettbewerbsthema SURFACE dar.

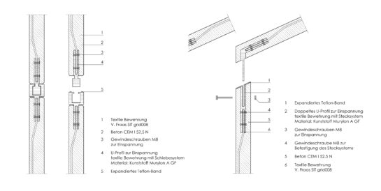
Seine an die „Urhütte“ angelehnte Form mit spitzem, an beiden Giebelseiten auskragendem Dach bildet in der Draufsicht ein Sechseck. Die beiden Dachflächen gehen nahtlos in die Seitenwände über, die sich am Boden U-förmig nach innen zu Sitzbänken auffalten. Unterstützt durch die für Textilbetonteile typischen „runden Ecken“, die entstehen, weil das in den Beton eingebrachte Textil nicht geknickt werden kann, wird der Unterstand als ein einziges, großes Objekt wahrgenommen. Seine Konstruktionsweise als Stecksystem aus vorgefertigten Einzelelementen ist dennoch bewusst sichtbar und als prägendes gestalterisches Mittel eingesetzt: Schon bei der Herstellung der insgesamt sieben Textilbetonelemente werden schmale Schienen aus faserverstärktem Kunststoff mit eingegossen, in die wiederum die Textilbewehrung für den Beton eingelegt ist. So können die einzelnen Elemente sehr leicht ineinandergeschoben werden und müssen lediglich noch zur Lagesicherung verschraubt werden. Es bleiben sichtbare horizontale Verbindungsfugen, die das Objekt gliedern. Diese wurden integral im Entwurf mitgedacht und sind in ihrer Lage ästhetisch stimmig gesetzt.

Die Elemente sind so dimensioniert, dass sie sich mit einer handelsüblichen Sackkarre transportieren und problemlos von 4 Personen mit einfachsten Werkzeugen montieren und demontieren lassen. Dieser systemische Ansatz, der das Potential des Werkstoffs Textilbeton durch eine spezielle Verbindungstechnik aufzeigt, lässt die ausgezeichnete Arbeit genauso zu einer Produktentwicklung mit vielfältigen Anwendungsmöglichkeiten wie zu einem architektonischen Entwurf werden.

Besonders überzeugend ist das Projekt in den Augen der Jury durch seine konsequente gestalterische Umsetzung der konstruktiven Möglichkeiten von Textilbeton, die die Leichtigkeit des Materials fast papierähnlich inszeniert: Selbststehend trotz extrem minimierter Materialstärken ist das Objekt Tragwerk und Hülle, solide und fragil zugleich. Dieses Spannungsfeld macht die Arbeit zu einem höchst interessanten Wettbewerbsbeitrag, dem man im besten Sinne die Symbiose der Kompetenzen des Entwurfsteams aus Studentinnen der Architektur und des Konstruktiven Ingenieurbaus anmerkt.


