
Sandra Fiebig ist Architekturstudentin im Masterstudiengang der Hochschule Koblenz. Mit ihrer im Wintersemester 2012/2013 abgeschlossenen Bachelor-Thesis erreichte sie den ersten Platz bei den Campus Masters des Internetportals BauNetz im Zeitraum Mai/Juni 2013. Ihr Dozent, Prof. Georg A. Poensgen, hatte sie motiviert, an diesem Wettbewerb teilzunehmen. Die Jury der BauNetz-Redaktion konnte sie mit dem Entwurf „Ein ‚Kunsthaus‘ für die Akademie Steinfeld“ überzeugen. Für unser Blog stellt sie ihre Arbeit als „Hochschulreporter“ vor.
„Architektur ist das kunstvolle, korrekte und großartige Spiel der unter dem Licht versammelten Baukörper“, Le Corbusier.
Dieses Zitat begleitete meine Bachelor-Thesis mit der Entwurfsaufgabe „Ein Kunsthaus für die Akademie Steinfeld“.
Aufgabe. Die Akademie Steinfeld befindet sich hinter den Mauern der Klosteranlage Steinfeld. Diese zählt zu den größten und bedeutendsten Kulturstätten der Eifel. Beabsichtigt wird ein zusätzliches „Kunst- und Ausstellungsgebäude“ für die Akademie Steinfeld. Der Gedanke dabei war, das Kloster Steinfeld als kulturelle Institution in der Eifel zu etablieren. Hier sollen Künstler, Schriftsteller, Architekten eine „Bühne“ für ihre Arbeiten finden. Das „neue Kunsthaus“ soll mit einer zeitgemäßen „modernen Architektur“ in das bestehende Ensemble des Klosters eingefügt werden.
die Stille der Architektur. Die Leitidee für das Konzept entwickelt sich aus den vorhandenen Raumstrukturen der Klosteranlage; Bewegung, Fügung, Verknüpfung und Proportion der Räume. Ziel ist, den einzelnen Raum wahrzunehmen und sich auf einer Art Meditationsweg zu begeben. Die Verwendung von Beton bestärkt diese Idee, denn er bildet die Basis reinen Raum zu erschaffen. Unterstützt wird diese Wahrnehmung durch die Elemente Licht, Schatten und Wasser, denn „Licht erweckt Architektur zum Leben“ (Tadao Ando).
Die Platzierung des Kunsthauses in das bestehende Ensemble der Klosteranlage erfolgt durch die sensible Einbettung des Gedankens, ein „Kloster“ im Kloster aufleben zu lassen – bezogen auf die Kunst und den Geist des Ortes, entsteht ein zusätzlicher Raum der Stille.
hinkommen. Bereits aus der Ferne sind die unterschiedlichen Proportionen der einzelnen Baukörper über der Klostermauer zu erkennen. Somit integriert sich das Kunsthaus in das Gesamtbild der Klosteranlage. Durch die Verwendung von Sichtbeton bekommt die Silhouette des Gebäudekomplexes eine moderne Fassung.

Eingangsperspektive zum Kunsthaus
ankommen. Eine Wand aus glattem Sichtbeton begleitet den Weg bis hin zum Eingang des Kunsthauses. Dies sorgt für eine konzentrierte Bewegung und lässt einen erkennbaren, für sich stehenden Raum entstehen. Das Element Wasser umgibt die einzelnen Baukörper, somit wird die Fügung der Räume sichtbar und es entsteht eine Spannung und Dynamik der einzelnen Körper.
hereinkommen. Durch die langgezogene geometrische Form des ersten Baukörpers wird der Besucher eingefangen und tritt in das Foyer des Gebäudes ein. „Durch Vereinfachung und Rücknahme von Form wird reiner Raum erschaffen. „Das bringt einen gewissen Ernst in die Räume. Aber ich denke, dass sie dem Individuum mehr Möglichkeiten der Entfaltung geben, dass sie ihn im besten Fall verändern. Auch wenn es ein hohes Ziel ist: Ich hoffe, dass die fehlende Ablenkung in meinen Gebäuden das Humane im Menschen fördert“ (Tadao Ando).

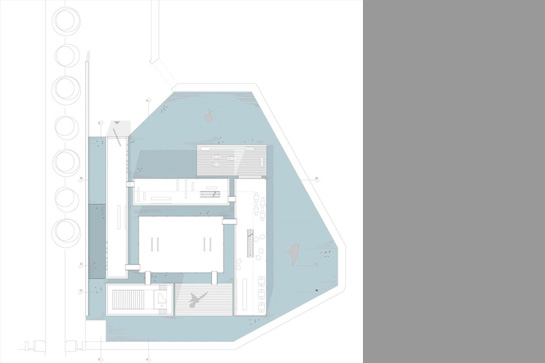
Grundriss des Gebäudekomplexes
durchkommen. Die Bewegung innerhalb des Kunsthauses ist als Rundgang zu betrachten. Geführt von Blicken; „Licht und Schatten, eingedrungen durch schmale Schlitze in Wand und Decke, bringen den Raum in Bewegung, lösen Spannung und verleihen dem geometrischen Raum Körperlichkeit“ (Tadao Ando). Die einzelnen Baukörper sind mit Verknüpfungselementen – ebenfalls aus Sichtbeton- verbunden, mit denen dem Besucher ein Bewusstmachen vom Raumwechsel angekündigt wird, jedoch nicht erahnen lässt, in welchen der Räume.
der Ausstellungsraum. Dieser Raum ist von den Sichtbetonwänden der andern Baukörper verdeckt, somit kann er nur gesehen werden, wenn das Kunsthaus besucht wird, von außen ist dieser niemals ersichtlich. Der Ausstellungsraum ist mit dem Herzstück des Klosters, dem Kreuzgang und seinen Lichthof zu vergleichen, jedoch lasse ich diesen Raum in neuer Interpretation aufleben. Der Ausstellungsraum ist komplett verglast und ringsum von Wasser und den geschlossenen Flächen der anderen Körper umgeben. Somit wird nicht von der eigentlichen Aufgabe des Raumes abgelenkt, der Kunst. Auf diese Weise entsteht ein Raum der Poesie. Er strahlt nicht nur Ruhe sondern auch Intensität aus. In dieser Abgeschiedenheit, in der Licht und Schatten Figuren an die Flächen der umliegenden Baukörper werfen, erschließt sich ein Raum für die Seele. Anders als beim Kreuzgang im Kloster ist, dass die weiteren Baukörper nur durch den Ausstellungsraum erschließbar sind und somit der Raum zu einem Knotenpunkt wird. Es soll deutlich machen, dass dieser Raum das Herzstück des Kunsthauses ist.
Die Vorstellung ist, das Kunsthaus nicht allein für die Kunst zu entwerfen, sondern es selbst als eine Architektonische Kunst darzustellen und zu erleben.

Perspektive außerhalb der Klostermauer
BauNetz Campus ist eine Internetplattform, die die besten Abschlussarbeiten aus Bachelor-, Master- und Diplom-Studiengängen der Fachrichtungen Architektur, Städtebau, Landschaftsarchitektur, Innenarchitektur und verwandter Studiengänge von Hochschulen aus Deutschland und Europa prämiert. Nach einer Vorauswahl durch die BauNetz-Redaktion werden zwanzig Arbeiten jeweils sechs Wochen lang zur Abstimmung online gestellt. Juroren sind die registrierten Nutzer, die für die einzelnen Arbeiten einen bis fünf Sterne vergeben können. Insgesamt finden pro Jahr sechs Prämierungen der jeweils drei besten Einreichungen statt. Aus diesen achtzehn Publikumsfavoriten ermittelt eine Fachjury am Ende des Jahres die drei „Master der Master“.

